Ga naar inhoud

Te koop: appartement de Schans 98 9351 AZ Leek

Jonkman Garantiemakelaars in Leek
Neem contact met mij op

Verkocht

€ 249.500,- k.k.

Modern en verzorgd 4-kamer appartement in hartje centrum van Leek; hier kun je zo in!

Dit goed onderhouden appartement boven het winkelcentrum ‘De Liekeblom’ is recent gemoderniseerd en wordt zorgvuldig bewoond. Met 3 slaapkamers op de verdieping, een ruime berging op de begane grond, een fijn balkon met uitzicht op groen en Nietap en alle voorzieningen om de hoek zorgt ervoor dat je hier aangenaam kunt wonen!

Het appartement is goed toegankelijk middels de lift en trap. Op de begane grond zijn de bergingen voor fietsen. Leek heeft vele voorzieningen waaronder een uitgebreid winkelaanbod en meerdere horecagelegenheden. Landgoed Nienoord is dichtbij en de omgeving is natuurrijk. De stad Groningen en Drachten zijn binnen 15 autominuten bereikbaar. Ook het openbaar vervoer is uitstekend te noemen. Op loopafstand is de bushalte, waar de bus gaat naar Groningen, Assen en Drachten.

Indeling
Algemeen:
Afgesloten portiek met brievenbussen, toegang tot de fietsenbergingen, trapopgang en lift.

Indeling appartement:
Begane grond:
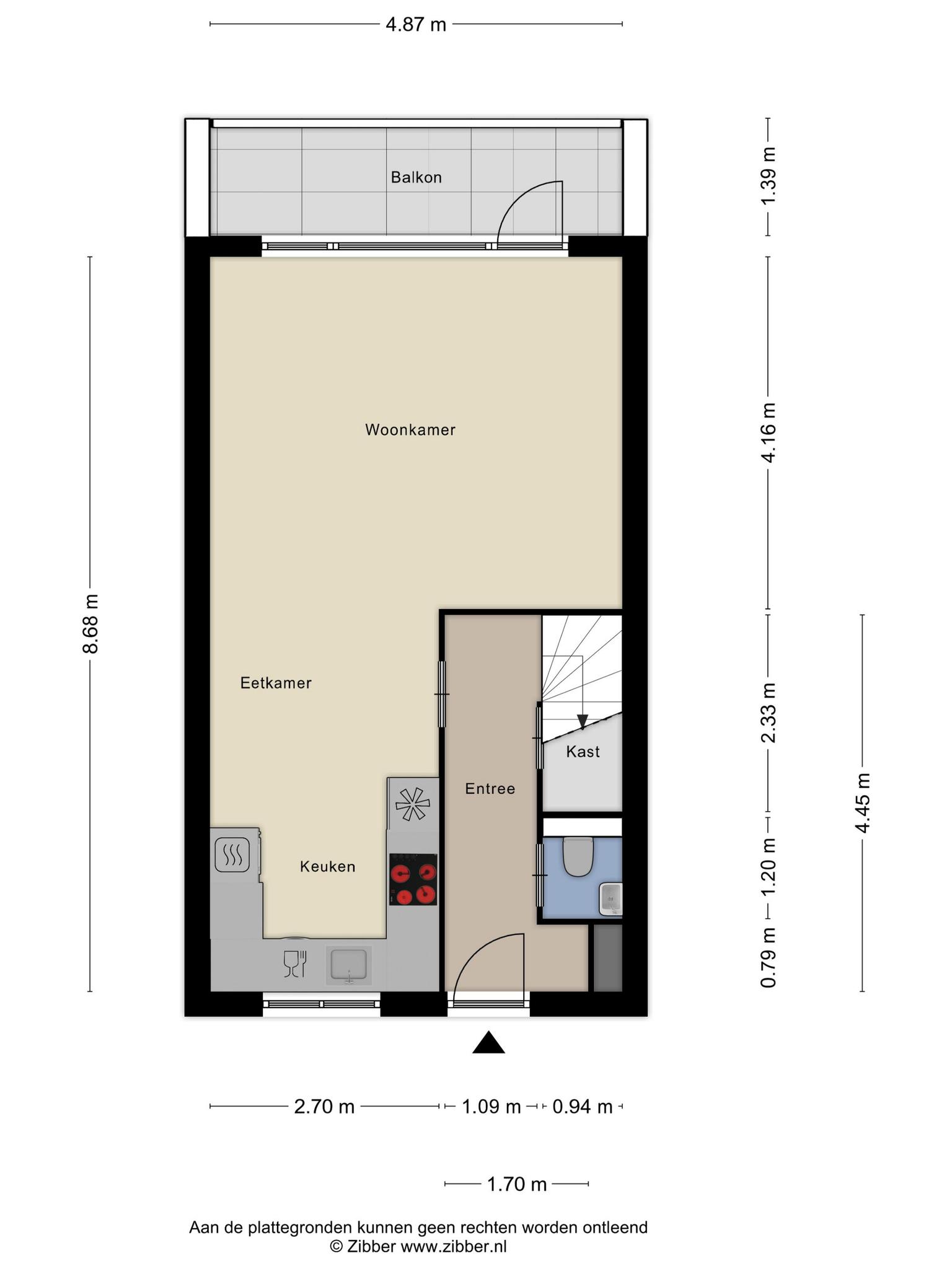
Entree/hal, vernieuwde meterkast met garderoberuimte, modern toilet met fontein, bergkast met c.v. opstelling, trap naar de slaapverdieping. Lichte woonkamer met deur naar het balkon op het zuiden en een moderne open keuken aan de galerijzijde voorzien van inductiekookplaat, afzuigkap, koelkast, oven, vaatwasser en boiler. Vanuit de woonkamer en het balkon is er uitzicht over groen en Nietap. Zowel in de hal, als in de woonkamer en keuken ligt een mooie laminaatvloer. De woonkamer met keuken zijn samen ca. 32 m² groot.

1e Verdieping:
Overloop, 3 slaapkamers van ca. 6, 7 en 12 m², waarvan 2 met speelse raampartijen, en een badkamer met douchecabine, wastafel met meubel, wasmachine aansluiting en 2e toilet (sanibrayeur).

Bijzonderheden:
– Screens woonkamer van 2021;
– Vernieuwde meterkast;
– Moderne keuken, toilet en verzorgde badkamer;
– Voorzien van HR++ beglazing;
– Voorzien van intercominstallatie en lift;
– Actieve Vereniging van eigenaren, bijdrage euro 90,31 per maand;
– Ruime parkeergelegenheid aanwezig nabij het appartement;
– Ligging in hartje centrum van Leek met zicht op groen en Nietap.

  • 79 m2
  • 3

Kenmerken de Schans 98

Overdracht

Vraagprijs€ 249.500,- k.k.
AanvaardingIn overleg

Oppervlaktes en inhoud

Woonoppervlakte79 m2
Inhoud259 m3

Bouw

SoortMaisonnette
BouwvormBestaande bouw
Bouwjaar1988
Dak typeSamengesteld dak
IsolatievormenDakisolatie, Muurisolatie, HR glas
EnergielabelC

Indeling

Aantal verdiepingen2
Aantal kamers4
Aantal slaapkamers3
Aantal badkamers1

Maandlasten

Ligging de Schans 98

Voorzieningen

Vergelijkbaar woningaanbod