€ 205.000,- k.k.
Op de eerste woonlaag in de wijk Corpus den Hoorn vind je dit appartement met twee slaapkamers en zowel een balkon op het oosten als het westen. In de ochtend kun je met een kopje koffie in de zon zitten en aan het einde van de dag geniet je van de laatste zonnestralen. Vanuit de woonkamer heb je mooi vrij zicht over de straat.
De ligging van dit appartement in de zuidzijde van Groningen is een perfecte uitvalsbasis. In de buurt heb je het winkelcentrum Overwinningsplein met diverse winkels, sportpark Corpus den Hoorn met allerlei sportvoorzieningen en ook het Stadspark is vlakbij. De binnenstad met alle voorzieningen is op fietsafstand te bereiken en ook het station en het Martiniziekenhuis bereik je zo. Het appartement is goed bereikbaar middels de nieuwe ringweg en ook de bus stopt bijna voor de deur.
Indeling:
Begane grond:
Afgesloten centrale portiek met brievenbussen, intercom, trappenhuis en toegang tot de inpandige bergingen in het souterrain.
Indeling appartement:
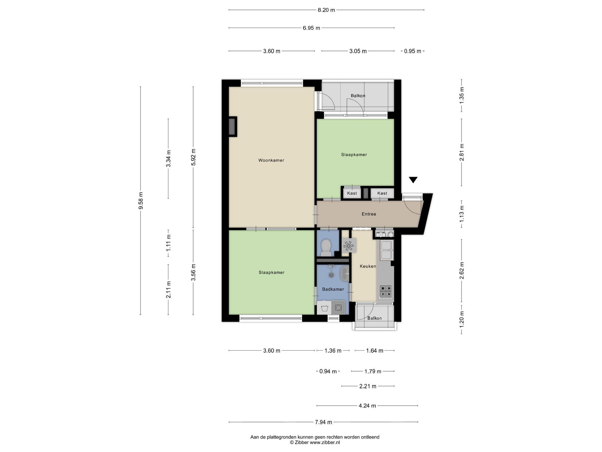
Entree, gang met meterkast en bergkast, toilet, slaapkamer van ca. 9 m² met toegang tot balkon, woonkamer van ca. 21 m² met grote raampartij en toegang tot het balkon aan de voorzijde, keuken voorzien van eenvoudige keukeninrichting met gaskookplaat en afzuigkap en deur naar het balkon aan de achterzijde, badkamer me douche, wastafel en wasmachine aansluiting, 2e slaapkamer van ca. 13 m².
In het souterrain is de zeer praktische dubbele berging van ca. 12 m² aanwezig met c.v. opstelling en extra opbergruimte.
Goed om te weten:
– Dubbele berging met c.v. opstelling uit 2022 in het souterrain
– Twee slaapkamers
– Balkon aan de voor- én achterzijde
– Alle voorzieningen dichtbij
– Gunstige ligging nabij uitvalswegen
– Actieve VVE, maandelijkse bijdrage € 130,-
– Geen lijsten beschikbaar, verkoper heeft het appartement niet zelf bewoond.
- 62 m2
- 2
Kenmerken Paterswoldseweg 473
Overdracht
| Vraagprijs | € 205.000,- k.k. | 
|---|---|
| Aanvaarding | In overleg | 
Oppervlaktes en inhoud
| Woonoppervlakte | 62 m2 | 
|---|---|
| Inhoud | 204 m3 | 
Bouw
| Soort | Portiekflat | 
|---|---|
| Bouwvorm | Bestaande bouw | 
| Bouwjaar | 1960 | 
| Isolatievormen | Dubbelglas, HR glas | 
| Energielabel | D | 
Indeling
| Aantal verdiepingen | 1 | 
|---|---|
| Aantal kamers | 3 | 
| Aantal slaapkamers | 2 | 
| Aantal badkamers | 1 | 
Maandlasten
Ligging Paterswoldseweg 473
Voorzieningen
Centraal gelegen informatie over de buurt
Aantal inwoners
In de gemeente
202.636
Leeftijd
in percentages van totaal
Huishoudsamenstelling
in percentages van totaal
61%
20% NL
23%
20% NL
16%
20% NL
 
                             
                             
                             
                             
                             
                             
                             
                             
                             
                             
                             
                             
                             
                             
                             
                             
                             
                             
                             
                             
                             
                             
                             
                             
                             
                             
                             
                             
                                 
                                 
                                 
                                 
                                 
                                 
                                 
                                 
                                 
                                 
                                 
                                 
                                 
                                 
                                 
                                 
                                 
                                 
                                 
                                 
                                 
                                 
                                 
                                 
                                 
                                 
                                 
                                 
                                 
                                 
                                     
                                     
                                                             
                             
                             
                             
                             
             
             
             
             
            