€ 219.500,- k.k.
Karakteristiek helft van een dubbel woonhuis zoekt een nieuwe eigenaar met 2 rechter handen of met handige klussers in de vrienden-/familiekring!
In deze woning uit 1926 vind je nog de originele elementen zoals glas-in-loodramen, paneeldeuren en hoge plafonds. De woning beschikt over een royale woonkamer, dichte keuken, bijkeuken, veel bergruimte en 4 slaapkamers op de verdieping. Hoewel modernisering en onderhoudswerkzaamheden gewenst zijn, biedt dit huis een uitstekende basis voor wie op zoek is naar een karaktervolle woning die nog volledig naar eigen wens kan worden gerenoveerd.
De woning is gelegen in de “dorps kern van de Groninger stadswijk Hoogkerk” te midden van een sfeervolle winkelstraat. Voorzieningen als restaurants, scholen, sport, zorg en het recreatieplas Ruskeveense Plas bevinden zich op enkele minuten afstand. Binnen twintig minuten fietsen ben je op de Grote Markt in het gezellige stadscentrum van Groningen. Ook de uitvalswegen A7 en A28 zijn uitstekend te bereiken.
Begane grond:
Entree/tochtportaal met aangrenzend een royale hal, toiletruimte en handige kelderruimte. Royale woonkamer van ca. 42 m² met openslaande deuren naar de tuin, dichte keuken van ca. 9 m² met daarachter de bijkeuken met berging en de aangebouwde houten schuur. 
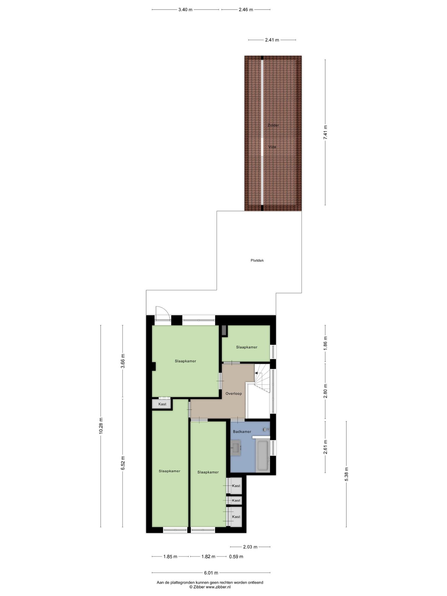
Eerste verdieping:
Overloop met goede daglicht voorziening uitgevoerd in glas in lood, 4 slaapkamers, waarvan 2 met vaste kasten van ca.  12, 12, 12 en 5 m² en een badkamer met douche, ligbad en wastafel.
Buiten:
De aangebouwde schuur is opgedeeld in 2 gedeeltes, ideaal te gebruiken als opslag en/of hobbyruimte. De achtertuin ligt op het noordoosten en is volledig bestraat.
Goed om te weten:
– Het betreft een kluswoning, verkoop as it is;
– Perceelgrootte 232 m²;
– Woning via achterom ook bereikbaar;
– Aantal originele elementen zoals glas in loodramen en paneeldeuren zijn aanwezig.
- 136 m2
- 232 m2
- 4
Kenmerken Zuiderweg 30
Overdracht
| Vraagprijs | € 219.500,- k.k. | 
|---|---|
| Aanvaarding | In overleg | 
Oppervlaktes en inhoud
| Perceel oppervlakte | 232 m2 | 
|---|---|
| Woonoppervlakte | 136 m2 | 
| Inhoud | 483 m3 | 
Bouw
| Soort | Eengezinswoning | 
|---|---|
| Bouwvorm | Bestaande bouw | 
| Bouwjaar | 1926 | 
| Dak type | Plat dak | 
| Isolatievormen | Grotendeels dubbelglas, HR glas | 
| Energielabel | G | 
Indeling
| Aantal verdiepingen | 3 | 
|---|---|
| Aantal kamers | 5 | 
| Aantal slaapkamers | 4 | 
| Aantal badkamers | 1 | 
Maandlasten
Ligging Zuiderweg 30
Voorzieningen
Centraal gelegen informatie over de buurt
Aantal inwoners
In de gemeente
202.636
Leeftijd
in percentages van totaal
Huishoudsamenstelling
in percentages van totaal
41%
20% NL
28%
20% NL
31%
20% NL
 
                             
                             
                             
                             
                             
                             
                             
                             
                             
                             
                             
                             
                             
                             
                             
                             
                             
                             
                             
                             
                             
                             
                             
                             
                             
                                 
                                 
                                 
                                 
                                 
                                 
                                 
                                 
                                 
                                 
                                 
                                 
                                 
                                 
                                 
                                 
                                 
                                 
                                 
                                 
                                 
                                 
                                 
                                 
                                 
                                 
                                 
                                 
                                     
                                     
                                     
                                                             
                             
                             
                             
                             
             
             
             
             
            