Ga naar inhoud

Te koop: woonhuis Pastorije 35 9356 BN Tolbert

Jonkman Garantiemakelaars in Leek
Neem contact met mij op

Verkocht

€ 350.000,- k.k.

In een rustige straat, omgeven door groen en speelvoorzieningen, ligt deze goed onderhouden en energiezuinige hoekwoning (energielabel A++) met garage en een prachtig aangelegde tuin op het zuidwesten, inclusief een gezellige overkapping.

De woning is ideaal gelegen in het sfeervolle Tolbert, met scholen en diverse kindvriendelijke voorzieningen zoals speelplaatsen, kinderopvang en basisscholen in de buurt. Het centrum van Tolbert en Leek, met een breed winkelaanbod, is op loop- en fietsafstand. Bovendien zijn zowel Groningen als Drachten binnen 15 minuten per auto bereikbaar via de A7. Ook het openbaar vervoer is uitstekend: op slechts 4 minuten lopen bevindt zich een bushalte, waar iedere 15 minuten een bus vertrekt richting Groningen.

Tolbert staat bekend om zijn natuurlijke, bosrijke omgeving, perfect voor wandelingen of fietstochten. Denk hierbij aan de bossen en het Landgoed Nienoord maar ook het Leekstermeer waar het alle jaargetijden goed toeven is.

Kortom: een kindvriendelijke en rustige woonwijk met alle voorzieningen binnen handbereik.

Indeling:
Begane grond:
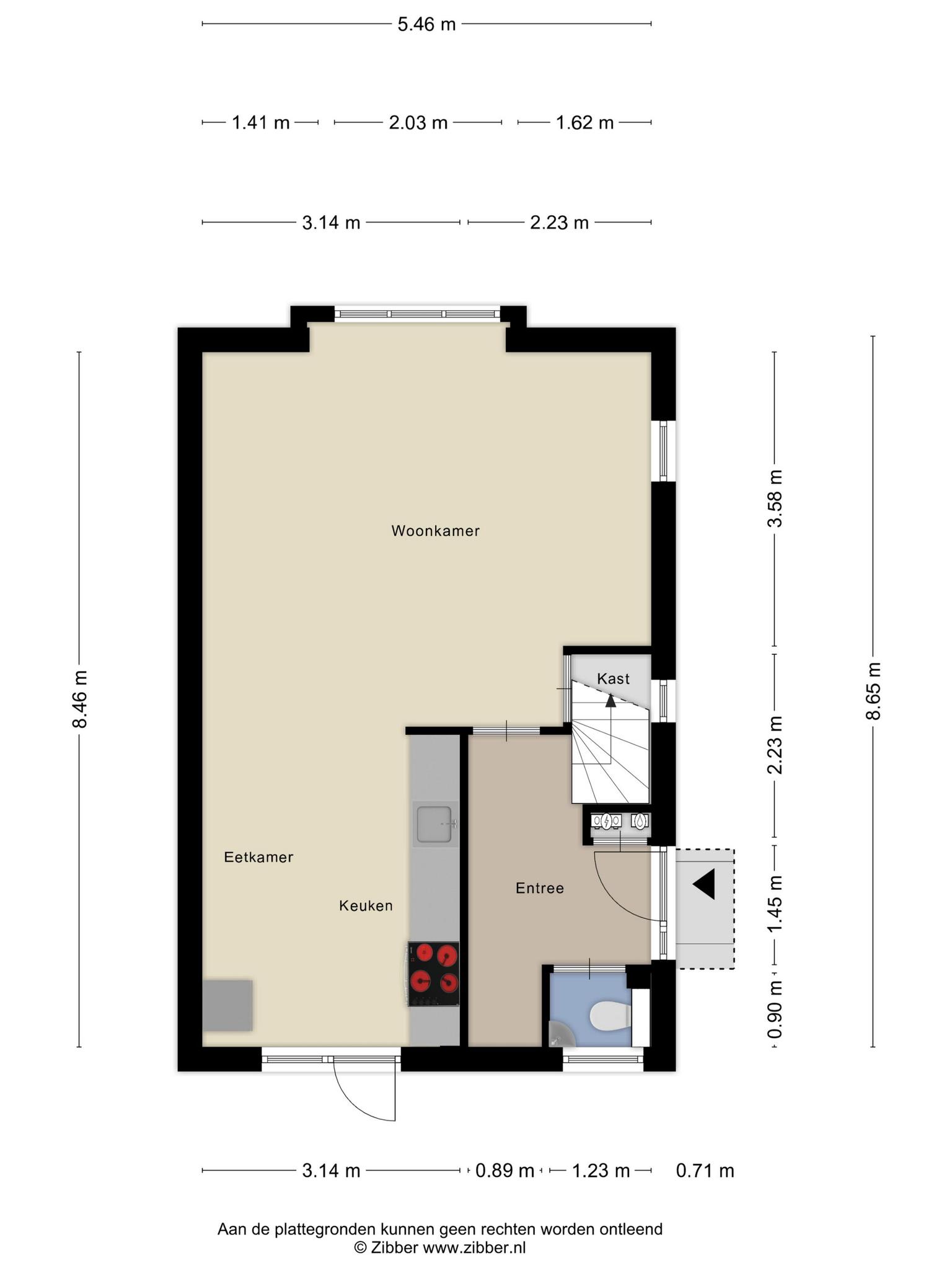
Entree/hal met garderoberuimte, meterkast en net toilet met fontein. Lichte woonkamer van ca. 25 m² met veel raampartijen en een handige provisiekast. Aan de tuinzijde is de nette keuken van ca. 12 m² met lichte keukeninrichting en inbouwapparatuur zoals een inductiekookplaat (2024) met afzuigkap, oven, koelkast (beiden uit 2023), vrieskast en een granieten aanrechtblad. Vanuit de keuken is de deur naar de verzorgde en de ca. 16 meter diepe achtertuin op het zuidwesten.

1e Verdieping:
Op de eerste verdieping bevinden zich de overloop met bergkast, 3 slaapkamers van ca. 12, 11 en 6.4 m², waarvan één met wastafel, en een verzorgde badkamer met douche, dubbele wastafel met meubel en 2e toilet.

2e Verdieping:
Via de vaste trap bereik je de 2e verdieping, waar je een overloop aantreft met een cv-/bergruimte en wasmachine aansluitingen. De ruime overloop geeft toegang tot een extra slaapkamer van 13 m² met bergruimte achter de kastdeuren.

Buiten:
Deze verzorgde woning ligt op een kavel van 265 m² eigen grond. De achtertuin met achterom is verzorgd aangelegd met diverse terrassen, sierborders en een overkapping. Er is veel privacy, daar er geen directe achterburen zijn. De achtertuin ligt op het zuidwesten, waardoor je nog lang kunt genieten van de zon. Op de oprit kunnen zeker 3 auto’s staan. De garage is ca. 17 m² groot.

Goed om te weten:
– Energielabel A++;
– Woonoppervlakte 109 m²;
– Perceeloppervlakte 265 m²
– Tuin op het zuidwesten met overkapping en achterom;
– 15 Eigen zonnepanelen;
– Dak-, vloer- en extra gevelisolatie;
– C.V.-ketel met hybride warmtepomp uit 2023;
– Meterkast vernieuwd;
– Zinken goten en hemelwaterafvoer vernieuwd in 2022;
– Garagedak vernieuwd in 2021;
– Waterontharder aanwezig;
– 4 Slaapkamers, uitermate geschikt voor een gezin;
– Zeer goed onderhouden;
– Parkeerruimte voor meerdere auto’s en garage van ca. 17 m²;
– Voorzieningen binnen handbereik; winkelcentrum Tolbert op loopafstand en winkels in Leek op fiets -en rijafstand.

  • 109 m2
  • 265 m2
  • 4

Kenmerken Pastorije 35

Overdracht

Vraagprijs€ 350.000,- k.k.
AanvaardingIn overleg

Oppervlaktes en inhoud

Perceel oppervlakte265 m2
Woonoppervlakte109 m2
Inhoud386 m3

Bouw

SoortEengezinswoning
BouwvormBestaande bouw
Bouwjaar1990
Dak typeZadeldak
IsolatievormenDakisolatie, Muurisolatie, Vloerisolatie, HR glas
EnergielabelA++

Indeling

Aantal verdiepingen3
Aantal kamers5
Aantal slaapkamers4
Aantal badkamers1

Maandlasten

Ligging Pastorije 35

Voorzieningen

Centraal gelegen informatie over de buurt

Aantal inwoners

In de gemeente

19.643

Leeftijd

in percentages van totaal

Huishoudsamenstelling

in percentages van totaal

31%

20% NL

36%

20% NL

33%

20% NL

Vergelijkbaar woningaanbod